Les infos Essentielles
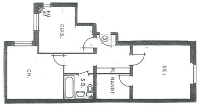
Belleville, rue Ramponeau, au 1er étage avec ascenseur d'un très bel immeuble ancien en briques et pierres de taille, 2 pièces de 54,66 m² carrez à rénover entièrement, transformable en 3 pièces. Il se compose d'une entrée, d'un séjour, d'une cuisine, d'une chambre, d'une salle de bains et de WC. Immeuble de bon standing, sécurisé avec gardien. Charme de l'ancien. Possibilité d'exercer une profession libérale
Localisation Du bien
-
Commerces et santé
-
Loisirs
-
Ecoles
-
Transports
-
Pratique
Les infos Energetiques
Montant estimé des dépenses annuelles d'énergie pour un usage standard est compris entre 1 350 € et 1 860 € . Prix moyens des énergies indexés sur les années 2021, 2022 et 2023 (abonnements compris).
Ce site est protégé par reCAPTCHA, les Politiques de Confidentialité et les Conditions d'Utilisation de Google s'appliquent.
Détails des diagnostics énergétiques
Montant estimé des dépenses annuelles d'énergie pour un usage standard est compris entre 1 350 € et 1 860 € . Prix moyens des énergies indexés sur les années 2021, 2022 et 2023 (abonnements compris).
